Prodej bytu 1+kk v Říčanech u Prahy
Říčany - Na Výšině

4 490 000 Kč

Popis

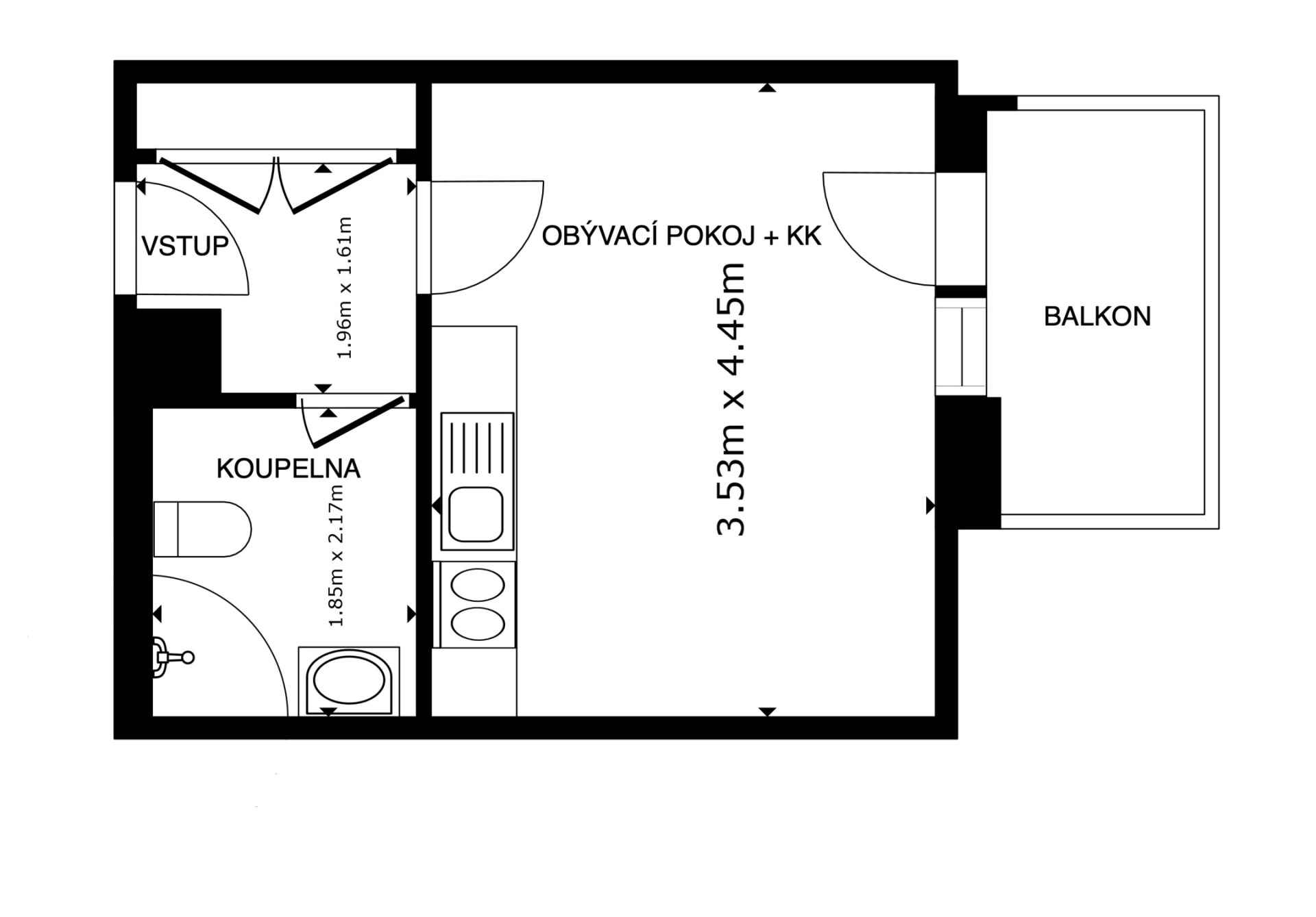
Nabízíme k prodeji útulný byt o dispozici 1+kk a podlahové ploše 25 m², který se nachází v přízemí moderního bytového domu zkolaudovaného v roce 2018, ve vyhledávané lokalitě Říčany.

K bytu náleží příjemná terasa o velikosti 4 m² orientovaná do klidného vnitrobloku, dále sklep a venkovní parkovací stání, které zajišťuje pohodlné parkování. V chodbě jsou praktické vestavné skříně, které nabízí dostatek úložného prostoru. Okna jsou vybavena elektrickými venkovními žaluziemi, které zvyšují komfort bydlení i soukromí.

Byt je situován v klidné části města s výbornou dostupností do centra Říčan i do Prahy. Lokalita nabízí kompletní občanskou vybavenost – obchody, restaurace, školy, školky i sportovní vyžití v docházkové vzdálenosti.

Velkou výhodou je, že byt je dlouhodobě pronajat se smlouvou do června 2026, s možností jejího prodloužení. Jedná se tak o ideální příležitost pro investory hledající nemovitost s okamžitým výnosem.

Pro více informací nebo sjednání prohlídky nás neváhejte kontaktovat.
Číslo nabídky
N513
Adresa
Říčany, Na Výšině
Dispozice bytu
1+kk
Druh stavby
Cihlová
Celková plocha
25 m2
Užitná plocha
32 m2
Stav objektu
Velmi dobrý
Typ domu
Patrový
Číslo podlaží
1
Počet podlaží
4
Počet podlaží pod zemí
1
Vlastnictví
Osobní
Terasa
4 m2
Sklep
3 m2
Rok výstavby
2017
Umístění objektu
Klidná část obce
PENB: Náročnost budovy
C - Úsporná
Tereza Lišková
Bc. Tereza Lišková
Domluvit prohlídku
zobrazit velkou mapu